Product 1

Premium Escalators for Shopping Malls & Airports

Model: HGM-E03

Technical Specifications:

Feature Specification
Rise Height 3–20 meters (1-6 stories)
Step Width 600mm, 800mm, 1,000mm (24", 32", 40")
Speed 0.5–0.65 m/s (98–128 ft/min)
Angle 30° (standard), 35° (space-saving)
Power Consumption 3.5–7.5 kW (50% less than legacy models)
Capacity 9,000 passengers/hour (1m width)

 

Catalog Send Inquiry

Product Details


Premium Escalators for Shopping Malls & Airports

Technical Specifications

Feature Specification
Rise Height 3–20 meters (1-6 stories)
Step Width 600mm, 800mm, 1,000mm (24", 32", 40")
Speed 0.5–0.65 m/s (98–128 ft/min)
Angle 30° (standard), 35° (space-saving)
Power Consumption 3.5–7.5 kW (50% less than legacy models)
Capacity 9,000 passengers/hour (1m width)

Modern escalators revolutionize people movement in commercial buildings, transport hubs, and high-rise buildings, providing essential vertical transportation that efficiently transports people across elevations. Unlike elevators with enclosed elevator cars, escalators offer continuous flow solutions with unique engineering to handle massive passenger volumes while optimizing energy consumption.

Core Escalator Components:

Drive & Motion Systems

  • Geared helical gearboxes (150,000+ hour lifespan)

  • 3-phase induction motors with VVVF drives

  • Regenerative braking systems (25% energy recovery)

  • Step chain assemblies (forged steel links)

Structural Framework

  • Steel trusses (12-45° adjustable incline)

  • Balustrades: Tempered glass or stainless steel

  • Combed step plates (anti-slip diamond pattern)

  • Moving handrails (static-resistant polymer)

Control & Safety

  • PLC-based control cabinets with IoT connectivity

  • Emergency stop buttons at landings

  • Step-edge lighting with fault detection

  • Skirt brush safety systems

 

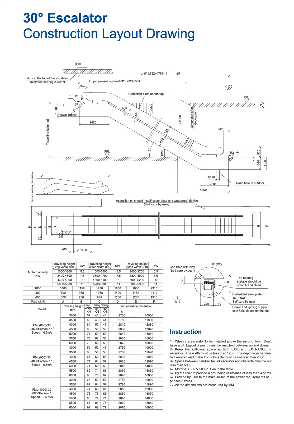
Layout Drawing:

 Layout Drawing:

 

Related Products


Send Inquiry


×